Projekti
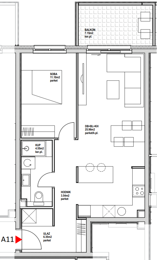
Stan A11
dvosoban
2.
Kat#
Prostorija
Površina
1
Ulaz
6.35 m2
2
Hodnik
3.54 m2
3
Dn. boravak, kuhinja, blagavaona
25.96 m2
4
Soba
11.10 m2
5
Kupaonica
4.55 m2
6
Balkon - natkriveni (7,15m2 x 0,75)
5.36 m2
UKUPNO
56,86 m2
Prodan
dvosoban
#
Prostorija
Površina
1
Ulaz
6.35 m2
2
Hodnik
3.54 m2
3
Dn. boravak, kuhinja, blagavaona
25.96 m2
4
Soba
11.10 m2
5
Kupaonica
4.55 m2
6
Balkon - natkriveni (7,15m2 x 0,75)
5.36 m2
UKUPNO
56,86 m2