Projekti
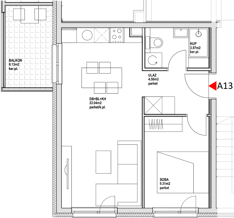
Stan A13
dvosoban
2.
Kat#
Prostorija
Površina
1
Ulaz
4.50 m2
2
Dn. boravak, kuhinja, blagavaona
23.04 m2
3
Soba
9.31 m2
4
Kupaonica
3.87 m2
5
Balkon - natkriveni (6,13m2 x 0,75)
4.60 m2
UKUPNO
45.32 m2
Prodan
dvosoban
#
Prostorija
Površina
1
Ulaz
4.50 m2
2
Dn. boravak, kuhinja, blagavaona
23.04 m2
3
Soba
9.31 m2
4
Kupaonica
3.87 m2
5
Balkon - natkriveni (6,13m2 x 0,75)
4.60 m2
UKUPNO
45.32 m2