Projekti
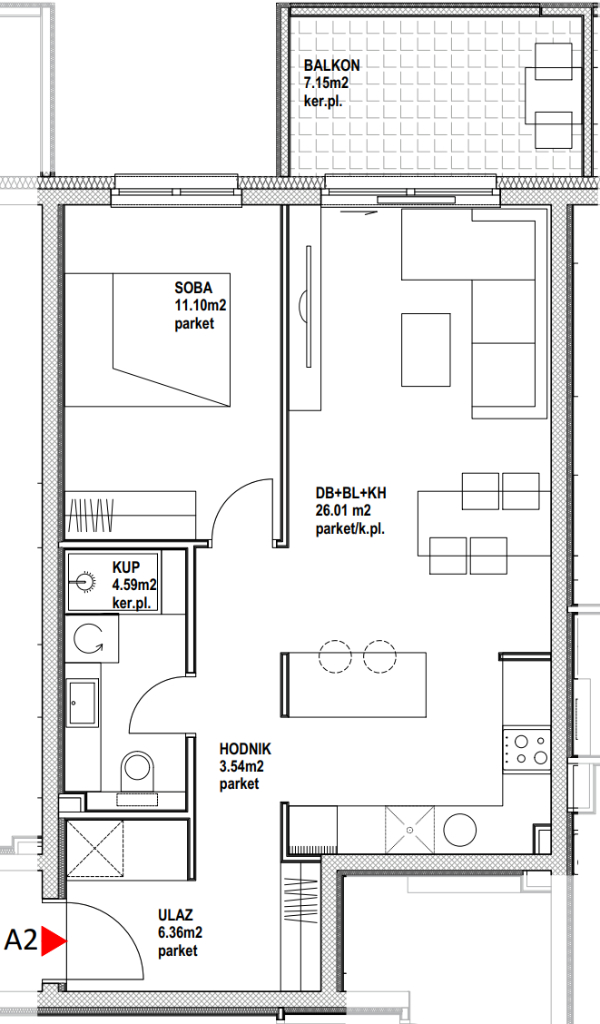
Stan A2
dvosoban
0.
Kat#
Prostorija
Površina
1
Ulaz
6,62 m2
2
Hodnik
7,37 m2
3
Dn. boravak, kuhinja, blagavaona
26.01 m2
4
Soba
11.10 m2
5
Kupaonica
4.59 m2
6
Balkon - natkriveni (7.15m2 x 0,75)
5.36 m2
UKUPNO
56.96 m2
Prodan
dvosoban
#
Prostorija
Površina
1
Ulaz
6,62 m2
2
Hodnik
7,37 m2
3
Dn. boravak, kuhinja, blagavaona
26.01 m2
4
Soba
11.10 m2
5
Kupaonica
4.59 m2
6
Balkon - natkriveni (7.15m2 x 0,75)
5.36 m2
UKUPNO
56.96 m2