Projekti
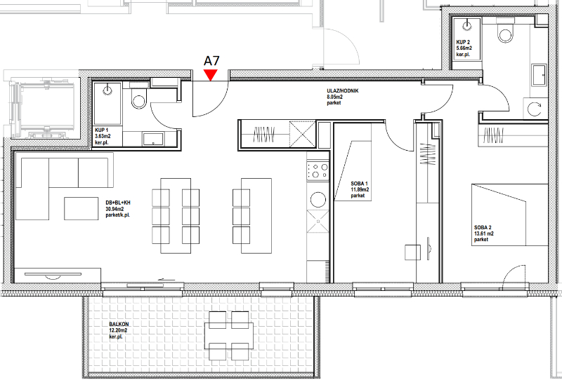
Stan A7
trosoban
1.
Kat#
Prostorija
Površina
1
Ulaz
8.05 m2
2
Dn. boravak, kuhinja, blagavaona
30.94 m2
3
Soba 1
11.89 m2
4
Soba 2
13.61 m2
5
Kupaonica 1
3.63 m2
6
Kupaonica 2
5.66 m2
7
Balkon - natkriveni (12,20m2 x 0,75)
9.15 m2
UKUPNO
82.93 m2
Prodan
