Projekti
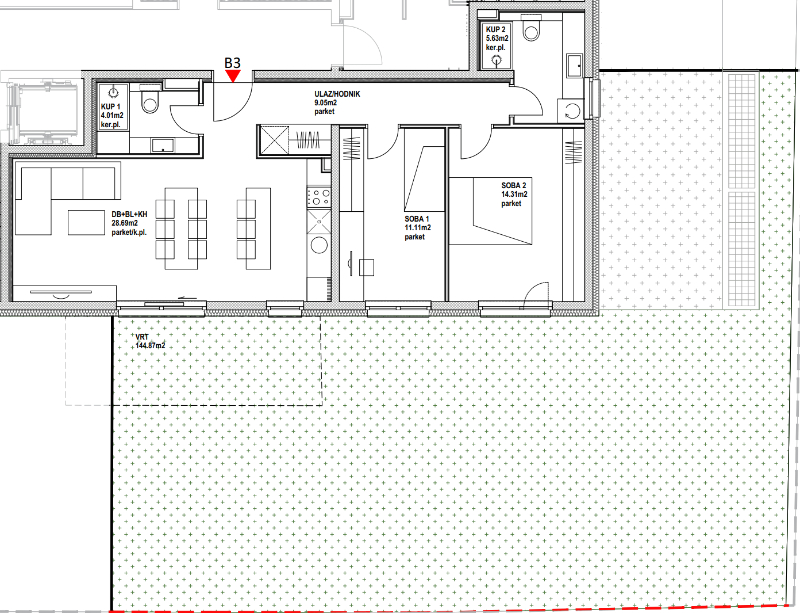
Stan B3
trosoban
0.
Kat#
Prostorija
Površina
1
Ulaz
9.05 m2
2
Dn. boravak, kuhinja, blagavaona
28.69 m2
3
Soba 1
11.11 m2
4
Soba 1
14.31 m2
5
Kupaonica 1
4.01 m2
6
Kupaonica 2
5.63 m2
7
Vrt (144,87m2 x 0,1)
14.49 m2
UKUPNO
87,29 m2
Prodan
